8010 Graz

NEUE KÜCHE + NEUES BAD... Nähe TU-Inffeld.. ideale WG-Eignung... Ganztagssonne...

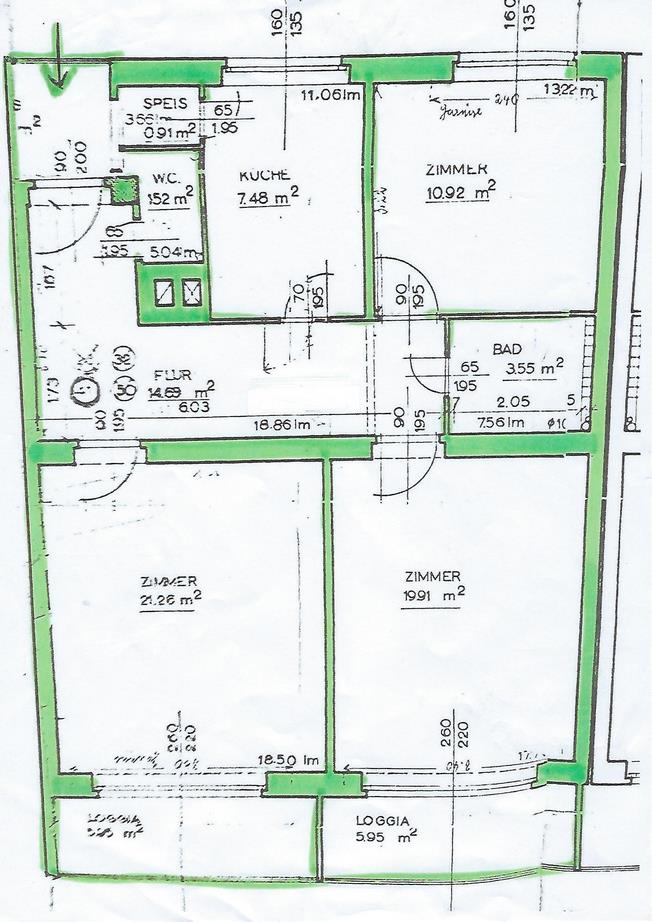
Überaus helle, freundliche Wohnung - Ganztagssonne durch Ost-West-Ausrichtung; durchdachte gute Raumeinteilung - Zimmer einzeln begehbar daher bei Bedarf ideale WG-Eignung; Zimmergrößen jeweils ca. 22 m², 20 m² und 11 m²; NEUE KÜCHE (mit Geschirrspüler, Ceranfeld-Herd, Dunstabzug, Kühl- Gefrierkombination sowie Frühstücksplatz); Speis/Abstellraum; NEUES BADEZIMMER mit Dusche und Waschmaschine ausgestattet; Toilette mit Gästewaschbecken vom Bad getrennt; inkl. 2 Südwest-Loggien mit jeweils ca. 6 m²; durchgehend Massivparkettböden; Fenster Kunststoff-Isolierverglasung mit Rolläden; Lift; Kellerabteil mit Tageslichtfenster; Fahrrad-Abstellraum; Allgemeingarten zum Mitbenützen; zentrale Lage mit guter Infrastruktur und GVB-Anbindung (Straßenbahn + Bus); 4 Radminuten zur TU-Inffeldgasse; 6 Radminuten zum Stadtstrand bei der Seifenfabrik; 6 Radminuten zum Augartenpark und Murradweg (Joggen, Skaten, Radfahren, Picknick an der Mur-Bucht...); Das Haus wurde bereits energetisch saniert (mit Vollwärmeschutz-Fassade) und verfügt über einen hervorragenden Energiewert; Miete bereits inklusive Betriebskosten, exkl. Fernwärme (dzt. 95,-).

Der Immobilienmakler erklärt, dass er - entgegen dem in der Immobilienwirtschaft üblichen Geschäftsgebrauch des Doppelmaklers - einseitig nur für den Vermieter tätig ist.

 87 m²
€ 927,--

Objektinformation

ID:m3fgg
Objektart:Wohnung
Zimmer:3
 
Heizung:Fernwärme
Böden:Parkett
WG-geeignet:für 3er-WG
Verfügbarkeit:sofort
 
Wohnfläche:87 m²
 
Gesamtmiete:
(inkl. MWSt)
€ 927,--
Kaution:€ 3.200,--
 
Maklerprovision:keine
 

Ausstattung und Energieausweis

+ Abstellraum
+ Keller
+ Küche
+ Lift
+ Loggia
 
HWB kwh/m²/Jahr:42,2
HWB Energieklasse:B
 
Download:Wohnungsplan
Für genauere Informationen zum Objekt kontaktieren Sie uns bitte.

Haben Sie Fragen?
Wir beraten Sie gerne!

Hobisch Immobilien
Messendorfer Straße 21d
8041 Graz

Kontaktformular